6 Bed Apartment
95 University Avenue
Queens Quarter, Belfast, BT7 1GX
offers over
£349,950
Key Features & Description
Two Self-Contained Apartments, One Two Bedroom Apartment and One Four Bedroom HMO Apartment
Fully Let at £28,560 per annum
Fantastic Presentation Throughout
Secure Yard to Rear
Gas Fired Central Heating With Separate Boilers and Double Glazed Windows
Superb Student Location Within Walking Distance of Queens University
Description
A rare opportunity to obtain a fantastic investment property on University Avenue. University Avenue is a widely popular location with students owing to its proximity to Queens University. Fully let until 2026, the building currently produces a rental income of £28,560 per annum.
Comprising a two bedroom apartment on the ground floor with open-plan living kitchen space, shower room with three piece suite and two double bedrooms. Upstairs, a four bedroom HMO apartment arranged over the first and second floor. Containing four double bedrooms, a lounge, fully equipped kitchen and two spacious shower rooms with three piece suites.
Early viewing is highly recommended.
A rare opportunity to obtain a fantastic investment property on University Avenue. University Avenue is a widely popular location with students owing to its proximity to Queens University. Fully let until 2026, the building currently produces a rental income of £28,560 per annum.
Comprising a two bedroom apartment on the ground floor with open-plan living kitchen space, shower room with three piece suite and two double bedrooms. Upstairs, a four bedroom HMO apartment arranged over the first and second floor. Containing four double bedrooms, a lounge, fully equipped kitchen and two spacious shower rooms with three piece suites.
Early viewing is highly recommended.
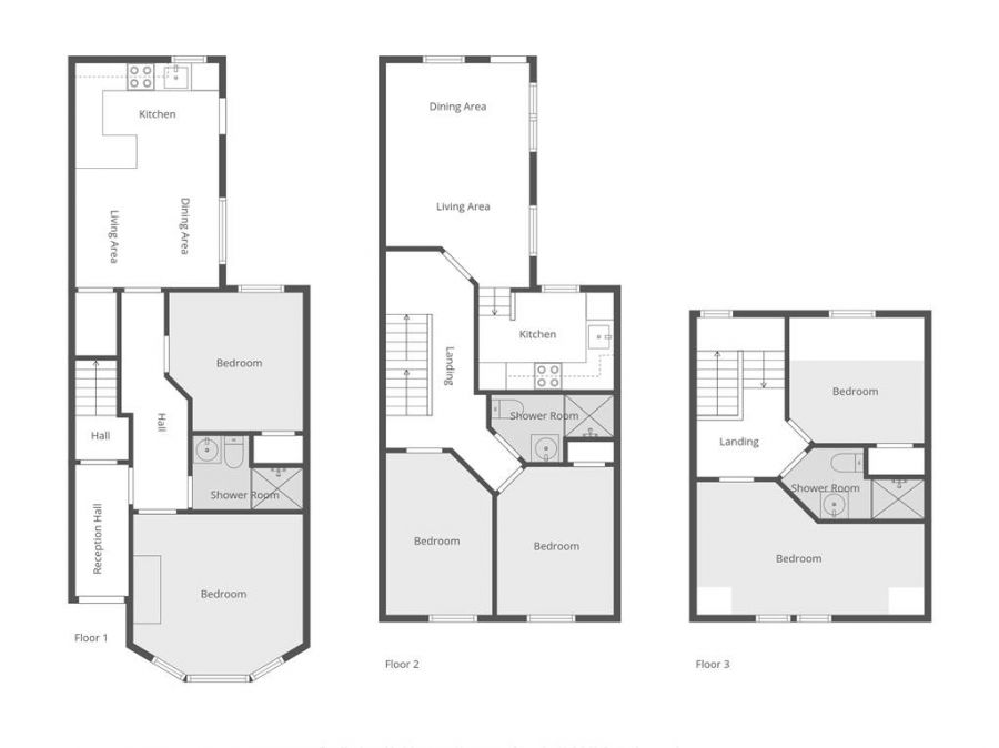
Rooms
ENTRANCE HALL:
Accessed via main door, electricity boxes.
OPEN-PLAN KITCHEN LOUNGE 16' 6" X 10' 2" (5.03m X 3.10m)
Open plan kitchen and living space with fire escape access to rear. Range of high and low level units with laminate work-surfaces, stainless steel sink and drainer, oven with ceramic hob and freestanding fridge.
BEDROOM (1): 9' 0" X 8' 0" (2.74m X 2.44m)
Carpeted flooring, built-in storage.
BEDROOM (2): 10' 8" X 10' 6" (3.25m X 3.20m)
Bay window. Carpeted flooring.
SHOWER ROOM:
Three piece suite with corner Redring electric shower with sliding door, wash hand basin, low flush W/C and extractor fan. Tiled flooring.
LOUNGE: 15' 10" X 10' 6" (4.83m X 3.20m)
Laminate flooring, access to fire escape.
KITCHEN 10' 3" X 7' 6" (3.12m X 2.29m)
Range of high and level units, laminate work-surfaces, stainless steel sink and drainer, oven with ceramic hob, extractor fan, integrated fridge/freezer and linoleum flooring.
BEDROOM (1): 9' 5" X 7' 5" (2.87m X 2.26m)
Carpeted, built-in storage.
BEDROOM (2): 10' 10" X 7' 4" (3.30m X 2.24m)
Carpeted flooring.
BEDROOM (3): 9' 0" X 8' 4" (2.74m X 2.54m)
Carpeted flooring.
BEDROOM (4): 15' 2" X 10' 4" (4.62m X 3.15m)
Carpeted flooring.
SHOWER ROOM:
Three piece suite with corner shower with sliding door, wash hand basin, low flush W/C and extractor fan.
Concreted secure yard to rear. Accessed via fire escape.
Property Location
Mortgage Calculator
Directions
Turning off Ormeau Road on to University Avenue and the property is circa 300 metres on your left.
Contact Agent
Contact GOC Estate Agents
Request More Information
Requesting Info about...
95 University Avenue, Queens Quarter, Belfast, BT7 1GX
By registering your interest, you acknowledge our Privacy Policy
By registering your interest, you acknowledge our Privacy Policy