Contact Agent

Contact Dalzell Property (Lisburn)

Contact Dalzell Property (Lisburn)

3 Bed Detached Bungalow

47B Halfpenny Gate Road

Moira, Broomhedge, BT67 0HW

offers around £245,000
  • Status For Sale
  • Property Type Detached Bungalow
  • Bedrooms 3
  • Receptions 1
  • Heating OFCH
  • EPC Rating D56 / D63 -
  • Stamp Duty
    Higher amount applies when purchasing as buy to let or as an additional property
    £2,400 / £14,650*
  • Typical Mortgage
    Click price to use our mortgage calculator
EPC Rating

Description

An impressive detached bungalow in a semi rural location only an five minute drive to the M1 at Moira and two minute drive to the main Lisburn to Moira Road. Set in a hamlet of houses and yet with the countryside a one minute walk.
This property oozes with potential and can only be fully appreciated by internal viewing.

The accommodation comprises: covered porch, reception hall, open lounge/dining area with feature fireplace, kitchen with dining area, 3 bedrooms and bathroom with bath and shower room.

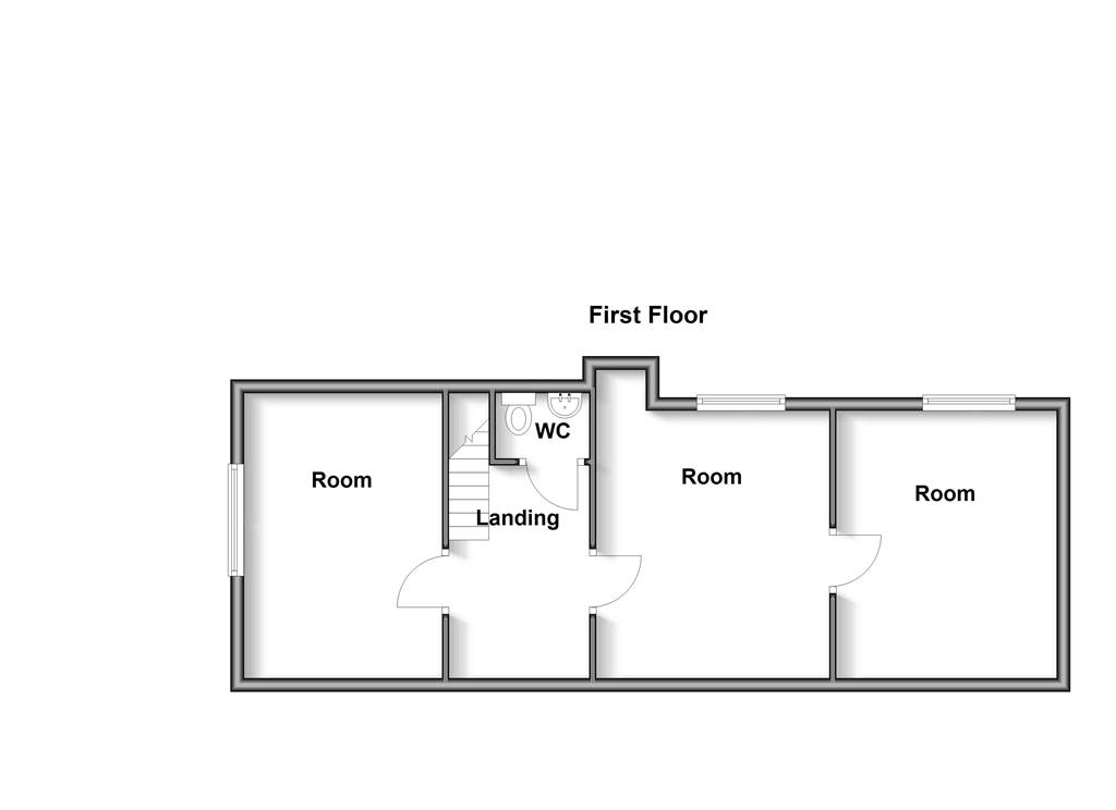
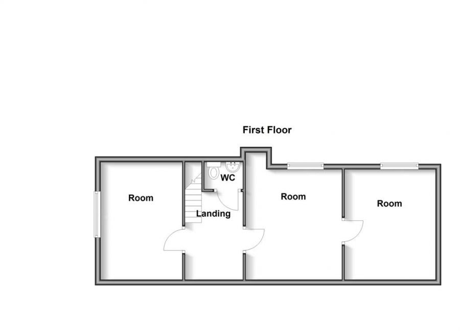
A narrow stairway leads from the hall to 3 rooms in the roofspace with a cloakroom containing WC and wash hand basin.
The property enjoys the benefit of oil fired central heating, PVC double glazed windows and PVC fascia and soffits.

Outside

Tarmac drive with parking to front and the side of the attached garage 21' 12" x 10' 6" (6.7m x 3.2m) with high roller door, rear pedestrian door, electric light and power. Small lawn area to front with spacious side lawn and rear area with paving and timber garden shed presently in use as a utility room. Outside lighting and water tap.
N.B. Metal shed is not included in the sale.

Rooms

OPEN PORCH: Tiled step
WIDE RECEPTION HALL: Hardwood, partly glazed front door with twin side panels. Built-in cloakroom. Built-in hotpress. Stairs to attic.
LOUNGE/DINING AREA: 21' 9" X 12' 0" (6.62m X 3.67m) Cornice ceiling. Two accesses off hallway. Feature fireplace with polished pine surround, cast iron decorative inset and marble tiled hearth.
KITCHEN/DINING AREA: 11' 12" X 13' 1" (3.65m X 4.00m) Excellent range of high and low level units in oak with matching work surfaces. Matching breakfast bar. Franke stainless steel sink unit with large and small bowls and mixer tap. Built-in hob and oven. Plumbed for dishwasher. Beamed ceiling with downlighting. Glazed door to hall. One high level unit with glazed door.
BEDROOM: 12' 0" X 10' 11" (3.67m X 3.32m)
BEDROOM: 10' 12" X 9' 12" (3.35m X 3.04m) Ornamental brick fireplace. Cornice ceiling.
BEDROOM: 9' 10" X 7' 4" (3.00m X 2.24m) Built-in wardrobe.
BATHROOM: White suite panelled bath with mixer tap. Tiled surround. Pedestal wash hand basin with tiled splashback. WC. Tiled shower cubicle with electric shower. Tiled floor.
LANDING: Spacious and bright with storage into roofspace.
CLOAKROOM: Pedestal wash hand basin. WC. One wall tiled.
ROOM 1: 11' 10" X 9' 10" (3.60m X 3.00m) Storage into eaves.
ROOM 2: 11' 3" X 12' 2" (3.44m X 3.70m) Door leading to:
ROOM 3: 13' 1" X 10' 8" (4.00m X 3.25m) Storage into eaves.

Broadband Speed Availability

Ultrafast

Potential Speeds for 47B Halfpenny Gate Road

Max Download
1800
Mbps
Max Upload
1000
Mbps
The speeds indicated represent the maximum estimated fixed-line speeds as predicted by Ofcom. Please note that these are estimates, and actual service availability and speeds may differ.

Property Location

Show Map

Mortgage Calculator

Disclaimer: The following calculations act as a guide only, and are based on a typical repayment mortgage model. Financial decisions should not be made based on these calculations and accuracy is not guaranteed. Always seek professional advice before making any financial decisions.

Directions

Halfpenny Gate Road runs from the Meadow Road outside Moira towards Lisburn. No.47B can be approached via Meadow Road or from the Moira Road via Damhead Road.

Contact Agent

Contact Dalzell Property (Lisburn)

Contact Dalzell Property (Lisburn)

Request More Information
Requesting Info about...
47B Halfpenny Gate Road, Moira, Broomhedge, BT67 0HW 47B Halfpenny Gate Road, Moira, Broomhedge, BT67 0HW

By registering your interest, you acknowledge our Privacy Policy