Contact Agent

Contact Property Directions (Newcastle)

Contact Property Directions (Newcastle)

4 Bed Semi-Detached House

30 Glenveagh

Hilltown, BT34 5US

offers in the region of £175,000
  • Status For Sale
  • Property Type Semi-Detached
  • Bedrooms 4
  • Receptions 1
  • Bathrooms 2
  • Interior Area 1314 sqft
  • EPC Rating D60 / C71 -
  • Stamp Duty
    Higher amount applies when purchasing as buy to let or as an additional property
    £1,000 / £9,750*
  • Typical Mortgage
    Click price to use our mortgage calculator
EPC Rating

Key Features

Excellent renovation opportunity to create your ideal home
4 x Bedroom Semi-Detached House in a popular area
Spacious front and rear garden

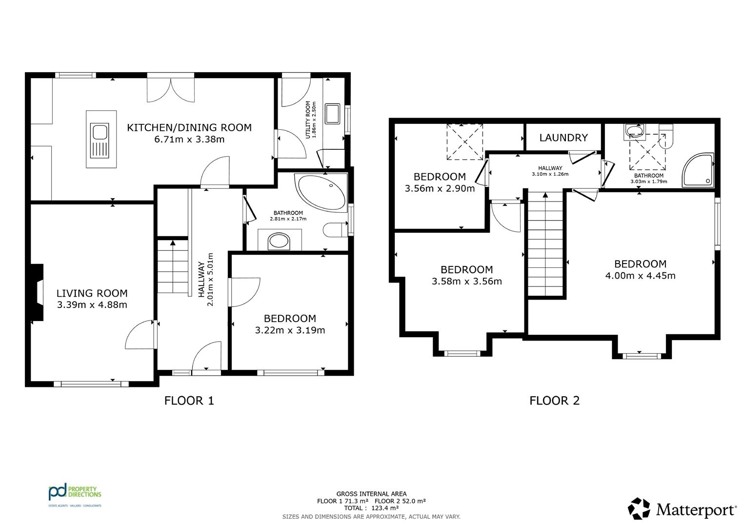
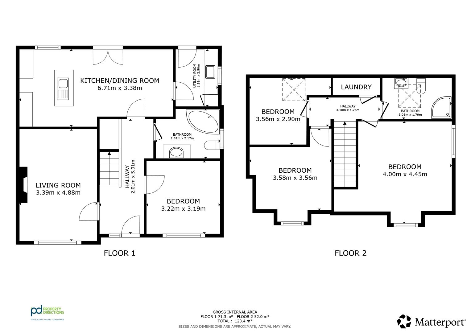
Rooms

ENTRANCE HALL: 16'5" X 6'7" (5.01m X 2.01m) Wooden door with glazed side panel opens up to an entrance hall with wooden laminate flooring leading off to living room, downstairs bedroom and bathroom
LIVING ROOM: 16'0" X 11'1" (4.88m X 3.39m) Good sized living room with front garden views. Wooden laminate flooring, open fire with a stone mantel piece, granite surround and hearth. Four double sockets, TV and telephone connection points
BATHROOM: 9'2" X 7'1" (2.81m X 2.17m) Main bathroom on the ground floor, corner panel bath, WC, wash hand basin, tiled floor, extractor fan
KITCHEN: 22'0" X 11'1" (6.71m X 3.38m) Spacious kitchen and dining area connecting to the rear garden via French doors, access to utility room. Electric and plumbing provision for an island, two double sockets, two single sockets, provision for an American style fridge freezer, one radiator
UTILITY ROOM: 8'2" X 6'1" (2.50m X 1.86m) Countertop space with wash hand basin, recess for appliances, access to rear garden. One double socket, extractor fan, radiator
UPSTAIRS LANDING: 10'2" X 4'1" (3.10m X 1.26m) Access to three-bedrooms, bathroom and hot press
BEDROOM 1: 10'6" X 10'5" (3.22m X 3.19m) Laminated wood flooring, front garden views, two double sockets and a radiator
BEDROOM 2: 13'1" X 14'7" (4.00m X 4.45m) Spacious double bedroom at the front of the house, roof space access, two double sockets, TV point, radiator
BEDROOM 3: 11'8" X 11'8" (3.58m X 3.56m) Double bedroom at the front of the property, one radiator, two double sockets
BEDROOM 4: 11'8" X 9'6" (3.56m X 2.90m) Single bedroom at the rear of the property, eaves storage, two double sockets, one radiator
UPSTAIRS BATHROOM: 9'11" X 5'10" (3.03m X 1.79m) Laminated wood flooring, floor standing vanity unit with ceramic basin, WC, quadrant shower enclosure with an electric shower, extractor fan, radiator
EXTERNAL: At the front of the property there is a lawn which continues to the rear of the property, the lawn is divided by a brick paved driveway.
DISCLAIMER All measurements are approximate and are for general guidance only. Any fixtures, fittings, services heating systems, appliances or installations referred to in these particulars have not been tested and therefore no guarantee can be given that they are in working order. Photographs have been produced for general information and it cannot be inferred that any item shown in included in the property. Any intending purchaser must satisfy himself by inspection or otherwise as to the correctness of each of the statements contained in these particulars. The vendor does not make or give and neither do Property Directions nor does any person in their employment have any authority to make or give any representation or warranty whatever in relation to this property.

Broadband Speed Availability

Ultrafast

Potential Speeds for 30 Glenveagh

Max Download
1800
Mbps
Max Upload
1000
Mbps
The speeds indicated represent the maximum estimated fixed-line speeds as predicted by Ofcom. Please note that these are estimates, and actual service availability and speeds may differ.

Property Location

Show Map

Mortgage Calculator

Disclaimer: The following calculations act as a guide only, and are based on a typical repayment mortgage model. Financial decisions should not be made based on these calculations and accuracy is not guaranteed. Always seek professional advice before making any financial decisions.

Contact Agent

Contact Property Directions (Newcastle)

Contact Property Directions (Newcastle)

Request More Information
Requesting Info about...
30 Glenveagh, Hilltown, BT34 5US 30 Glenveagh, Hilltown, BT34 5US

By registering your interest, you acknowledge our Privacy Policy