Contact Agent

Contact Templeton Robinson (Ballyhackamore)

Contact Templeton Robinson (Ballyhackamore)

3 Bed Semi-Detached House

23 Glenview Gardens

Castlereagh, Belfast, BT5 7LY

offers over £199,950
  • Status For Sale
  • Property Type Semi-Detached
  • Bedrooms 3
  • Receptions 1
  • Heating Oil
  • EPC Rating E39 / D64
  • Stamp Duty
    Higher amount applies when purchasing as buy to let or as an additional property
    £1,499 / £11,497*
  • Typical Mortgage
    Click price to use our mortgage calculator
EPC Rating

Key Features & Description

Bay fronted, red brick semi-detached home
Popular residential location
Three well-proportioned bedrooms
Living room, open plan to dining
Kitchen with access to rear
Bathroom with contemporary white suite
OFCH / Double glazing throughout
Off street driveway parking
Enclosed rear garden with sunny aspect
Views across Belfast City
Excellent amenities, parks and schools all close by
Priced to allow for modernisation / No onward chain
Description
Enjoying a quiet yet convenient location just off Belfast's Outer Ring, this attractive semi-detached home will appeal to a range of purchasers.

The layout comprises, large living room open to dining room with excellent views down to Belfast Lough and a kitchen occupy the ground floor. Three well-proportioned bedrooms and a family bathroom are located on the first floor.

Although now requiring some updating, the sale has been priced to reflect the work a purchaser may undertake. However, there is no onward chain, so the property is ready to move into.

Early viewing highly recommended.


PLEASE NOTE: this property was owned by a relative of a member of Templeton Robinson"s staff.

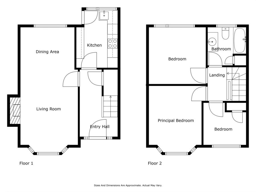
Rooms

uPVC front door with glazed side panels.
ENTRANCE HALL: Under stair storage cupboard. Cornice ceiling.
LIVING ROOM: 15' 10" X 11' 0" (4.83m X 3.35m) (into bay). Cornice ceiling. Feature fireplace with tiled hearth and wooden mantle. Uplighters. View across Belfast Lough. Open plan to:
DINING AREA: 10' 4" X 8' 1" (3.15m X 2.46m) Cornice ceiling.
KITCHEN: 11' 0" X 7' 11" (3.35m X 2.41m) Range of high and low level units, work surfaces, single drainer stainless steel sink unit with mixer tap, tiled splashback, integrated double oven, four ring electric hob, extractor fan above. Plumbed for washing machine, integrated fridge/freezer, feature glazed cabinet, PVC door to rear.
LANDING: Access to roofspace.
PRINCIPAL BEDROOM: 12' 9" X 10' 11" (3.89m X 3.33m) (into bay). Excellent views across Belfast Lough.
BEDROOM (2): 10' 11" X 10' 11" (3.33m X 3.33m) Outlook to rear.
BEDROOM (3): 8' 2" X 8' 1" (2.49m X 2.46m) Storage cupboard.
BATHROOM: White suite comprising dual flush wc, panelled bath with chrome mixer taps, electric shower and glass screen, chrome heated towel rail, vanity unit with ceramic sink and chrome mixer tap. Wall-mounted mirror with lighting, Fully tiled walls, tiled floor, PVC tongue and groove ceiling with spotlights. Hotpress with shelving.
FRONT: Driveway parking. Low maintenance front garden with mature shrubs.
GARAGE: (Now requiring attention). Wooden door, housing for oil boiler.
REAR: Enclosed rear patio area with sunny aspect. Oil tank, outside tap and light.

Broadband Speed Availability

Ultrafast

Potential Speeds for 23 Glenview Gardens

Max Download
1800
Mbps
Max Upload
220
Mbps
The speeds indicated represent the maximum estimated fixed-line speeds as predicted by Ofcom. Please note that these are estimates, and actual service availability and speeds may differ.

Property Location

Show Map

Mortgage Calculator

Disclaimer: The following calculations act as a guide only, and are based on a typical repayment mortgage model. Financial decisions should not be made based on these calculations and accuracy is not guaranteed. Always seek professional advice before making any financial decisions.

Directions

Off the Ballygowan or Knock Roads into Glen Road, then turn up Lower Braniel Road and Glenview Gardens is first right. Property is on the left hand side.

Contact Agent

Contact Templeton Robinson (Ballyhackamore)

Contact Templeton Robinson (Ballyhackamore)

Request More Information
Requesting Info about...
23 Glenview Gardens, Castlereagh, Belfast, BT5 7LY 23 Glenview Gardens, Castlereagh, Belfast, BT5 7LY

By registering your interest, you acknowledge our Privacy Policy