Land
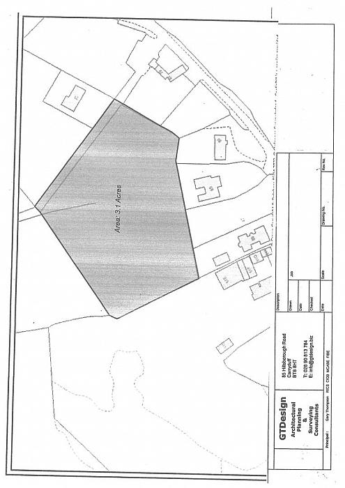
3.1 Acres to Rear Of 81, 83 & 85 Hillsborough Road
Carryduff, BT8 8HT
price guide
£75,000
- Status For Sale
- Property Type Land
-
Stamp Duty
Higher amount applies when purchasing as buy to let or as an additional property£0 / £3,750*
Description
A rare opportunity exists to purchase a compact portion of quality agricultural lands extending to circa 3.1 acres.
The lands approached shared laneway is situated on the outskirts of Carryduff and set back a short distance from the country road.
The lands are currently laid down to grass with silage have been cut off the fields in recent years but appears to be equally suitable for grazing and/or arable purposes.
The purchase of the lands provides an ideal opportunity to acquire land for those with Equestrian farming, tree planting and a wide range of other purposes.
Guide Price £75,000
For sale as a whole or in lots.
Viewing Anytime
Location
Proceed out Hillsborough Road and turn right into the laneway immediately past the Moss Road towards the land which is on the left handside of the approach laneway.
The lands approached shared laneway is situated on the outskirts of Carryduff and set back a short distance from the country road.
The lands are currently laid down to grass with silage have been cut off the fields in recent years but appears to be equally suitable for grazing and/or arable purposes.
The purchase of the lands provides an ideal opportunity to acquire land for those with Equestrian farming, tree planting and a wide range of other purposes.
Guide Price £75,000
For sale as a whole or in lots.
Viewing Anytime
Location
Proceed out Hillsborough Road and turn right into the laneway immediately past the Moss Road towards the land which is on the left handside of the approach laneway.
Property Location
Mortgage Calculator
Contact Agent
Contact Tim Martin & Co (Comber)
Request More Information
Requesting Info about...
3.1 Acres to Rear Of 81, 83 & 85 Hillsborough Road, Carryduff, BT8 8HT
By registering your interest, you acknowledge our Privacy Policy
By registering your interest, you acknowledge our Privacy Policy